UPCYCLE Barcelona : congenerative design strategies for a sustainable urban metabolism

This publication presents the results of a two-week Erasmus Intensive Programme organized in Barcelona’s Zona Franca during spring 2014 in order to explore potential convergences between urbanism, urban metabolism and industrial ecology for planning sustainable European cities.

European Commission Lifelong Learning Programme funding offered the Faculty of Architecture of Université Libre de Bruxelles (ULB) the opportunity to organize this event jointly with Escola Tècnica Superior d’Arquitectura de Barcelona (ETSAB), Universitat Politècnica de Catalunya (UPC). Thanks to intensive collaboration ith the Barcelona Regional local development agency, it was possible to ground this research by design workshop in the specific context of Barcelona Zona Franca.

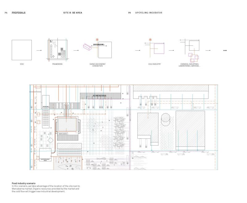
Download publication